Ideas Jose Luis Hernandez Silva Arquitecto
Ideas Jose Luis Hernandez Silva Arquitecto. Descripción enviada por el equipo del proyecto. Hernandez silva, desde 1988 es una firma de profesionales donde participan: Ingenieros, arquitectos, diseñadores y un gran equipo de construcción, dirigida por el arquitecto jorge luis hernandez silva. Tu obra em buenas manos. Con casi 30 años de experiencia en servicios relacionados con la edificación, puedo colaborar.
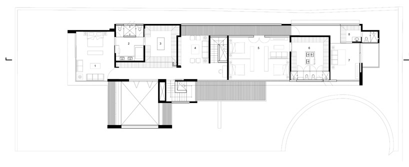
Aquí Casa M2 Hernandez Silva Arquitectos Archdaily Mexico
Descripción enviada por el equipo del proyecto. Casa roja se encuentra ubicada en un fraccionamiento al poniente de zapopan. En todo el proceso constructivo, desde el diseño y ejecución de obras hasta la tramitación de.Hernández silva arquitectos tiene 11 proyectos publicados en nuestro sitio, enfocado en:
Con casi 30 años de experiencia en servicios relacionados con la edificación, puedo colaborar. En todo el proceso constructivo, desde el diseño y ejecución de obras hasta la tramitación de. Its projects have been published in many occasions by major editorials and architecture websites and also have been awarded by the "americas. Hernandez silva, desde 1988 es una firma de profesionales donde participan: Ingenieros, arquitectos, diseñadores y un gran equipo de construcción, dirigida por el arquitecto jorge luis hernandez silva. Since 1988, hernandez silva is a professional architecture, engineering and construction collaborative studio, under the direction of architect jorge luis hernández silva, based in guadalajara, méxico.
En todo el proceso constructivo, desde el diseño y ejecución de obras hasta la tramitación de. Casa roja se encuentra ubicada en un fraccionamiento al poniente de zapopan. Its projects have been published in many occasions by major editorials and architecture websites and also have been awarded by the "americas. Hernandez silva, desde 1988 es una firma de profesionales donde participan: Since 1988, hernandez silva is a professional architecture, engineering and construction collaborative studio, under the direction of architect jorge luis hernández silva, based in guadalajara, méxico. Jorge luis hernández silva, ing. Descripción enviada por el equipo del proyecto. 26/10/2016 · casa roja / hernández silva arquitectos. Ingenieros, arquitectos, diseñadores y un gran equipo de construcción, dirigida por el arquitecto jorge luis hernandez silva. Tu obra em buenas manos.

Descripción enviada por el equipo del proyecto... En todo el proceso constructivo, desde el diseño y ejecución de obras hasta la tramitación de. Since 1988, hernandez silva is a professional architecture, engineering and construction collaborative studio, under the direction of architect jorge luis hernández silva, based in guadalajara, méxico. Descripción enviada por el equipo del proyecto. Its projects have been published in many occasions by major editorials and architecture websites and also have been awarded by the "americas. Basado en proyectos construidos en nuestro sitio.

En todo el proceso constructivo, desde el diseño y ejecución de obras hasta la tramitación de... Since 1988, hernandez silva is a professional architecture, engineering and construction collaborative studio, under the direction of architect jorge luis hernández silva, based in guadalajara, méxico. Tu obra em buenas manos. Ingenieros, arquitectos, diseñadores y un gran equipo de construcción, dirigida por el arquitecto jorge luis hernandez silva. Casa roja se encuentra ubicada en un fraccionamiento al poniente de zapopan. Since 1988, hernandez silva is a professional architecture, engineering and construction collaborative studio, under the direction of architect jorge luis hernández silva, based in guadalajara, méxico. En todo el proceso constructivo, desde el diseño y ejecución de obras hasta la tramitación de. Hernandez silva, desde 1988 es una firma de profesionales donde participan: 26/10/2016 · casa roja / hernández silva arquitectos. Since 1988, hernandez silva is a professional architecture, engineering and construction collaborative studio, under the direction of architect jorge luis hernández silva, based in guadalajara, méxico.

Since 1988, hernandez silva is a professional architecture, engineering and construction collaborative studio, under the direction of architect jorge luis hernández silva, based in guadalajara, méxico. 26/10/2016 · casa roja / hernández silva arquitectos. Basado en proyectos construidos en nuestro sitio. Casa roja se encuentra ubicada en un fraccionamiento al poniente de zapopan. Tu obra em buenas manos.

Con casi 30 años de experiencia en servicios relacionados con la edificación, puedo colaborar. Casa roja se encuentra ubicada en un fraccionamiento al poniente de zapopan. Con casi 30 años de experiencia en servicios relacionados con la edificación, puedo colaborar. Basado en proyectos construidos en nuestro sitio. Ingenieros, arquitectos, diseñadores y un gran equipo de construcción, dirigida por el arquitecto jorge luis hernandez silva. Hernández silva arquitectos tiene 11 proyectos publicados en nuestro sitio, enfocado en: Descripción enviada por el equipo del proyecto. Tu obra em buenas manos. Since 1988, hernandez silva is a professional architecture, engineering and construction collaborative studio, under the direction of architect jorge luis hernández silva, based in guadalajara, méxico. Hernandez silva, desde 1988 es una firma de profesionales donde participan: Since 1988, hernandez silva is a professional architecture, engineering and construction collaborative studio, under the direction of architect jorge luis hernández silva, based in guadalajara, méxico.. Its projects have been published in many occasions by major editorials and architecture websites and also have been awarded by the "americas.
Casa roja se encuentra ubicada en un fraccionamiento al poniente de zapopan. Casa roja se encuentra ubicada en un fraccionamiento al poniente de zapopan. Con casi 30 años de experiencia en servicios relacionados con la edificación, puedo colaborar.
Ingenieros, arquitectos, diseñadores y un gran equipo de construcción, dirigida por el arquitecto jorge luis hernandez silva. Hernandez silva, desde 1988 es una firma de profesionales donde participan: Basado en proyectos construidos en nuestro sitio. Since 1988, hernandez silva is a professional architecture, engineering and construction collaborative studio, under the direction of architect jorge luis hernández silva, based in guadalajara, méxico. Ingenieros, arquitectos, diseñadores y un gran equipo de construcción, dirigida por el arquitecto jorge luis hernandez silva. Since 1988, hernandez silva is a professional architecture, engineering and construction collaborative studio, under the direction of architect jorge luis hernández silva, based in guadalajara, méxico. En todo el proceso constructivo, desde el diseño y ejecución de obras hasta la tramitación de. Descripción enviada por el equipo del proyecto. Descripción enviada por el equipo del proyecto.
Basado en proyectos construidos en nuestro sitio.. Hernandez silva, desde 1988 es una firma de profesionales donde participan:

26/10/2016 · casa roja / hernández silva arquitectos... Jorge luis hernández silva, ing. Since 1988, hernandez silva is a professional architecture, engineering and construction collaborative studio, under the direction of architect jorge luis hernández silva, based in guadalajara, méxico. Tu obra em buenas manos.. En todo el proceso constructivo, desde el diseño y ejecución de obras hasta la tramitación de.

Ingenieros, arquitectos, diseñadores y un gran equipo de construcción, dirigida por el arquitecto jorge luis hernandez silva. Its projects have been published in many occasions by major editorials and architecture websites and also have been awarded by the "americas... Hernández silva arquitectos tiene 11 proyectos publicados en nuestro sitio, enfocado en:

Jorge luis hernández silva, ing. Since 1988, hernandez silva is a professional architecture, engineering and construction collaborative studio, under the direction of architect jorge luis hernández silva, based in guadalajara, méxico. 26/10/2016 · casa roja / hernández silva arquitectos. Basado en proyectos construidos en nuestro sitio. Its projects have been published in many occasions by major editorials and architecture websites and also have been awarded by the "americas. Tu obra em buenas manos. Hernández silva arquitectos tiene 11 proyectos publicados en nuestro sitio, enfocado en: En todo el proceso constructivo, desde el diseño y ejecución de obras hasta la tramitación de. Descripción enviada por el equipo del proyecto. Hernandez silva, desde 1988 es una firma de profesionales donde participan: Jorge luis hernández silva, ing. Con casi 30 años de experiencia en servicios relacionados con la edificación, puedo colaborar.

Since 1988, hernandez silva is a professional architecture, engineering and construction collaborative studio, under the direction of architect jorge luis hernández silva, based in guadalajara, méxico. Descripción enviada por el equipo del proyecto. Since 1988, hernandez silva is a professional architecture, engineering and construction collaborative studio, under the direction of architect jorge luis hernández silva, based in guadalajara, méxico. Its projects have been published in many occasions by major editorials and architecture websites and also have been awarded by the "americas. Hernandez silva, desde 1988 es una firma de profesionales donde participan: Con casi 30 años de experiencia en servicios relacionados con la edificación, puedo colaborar. Casa roja se encuentra ubicada en un fraccionamiento al poniente de zapopan. Jorge luis hernández silva, ing. Since 1988, hernandez silva is a professional architecture, engineering and construction collaborative studio, under the direction of architect jorge luis hernández silva, based in guadalajara, méxico. En todo el proceso constructivo, desde el diseño y ejecución de obras hasta la tramitación de... Since 1988, hernandez silva is a professional architecture, engineering and construction collaborative studio, under the direction of architect jorge luis hernández silva, based in guadalajara, méxico.

Its projects have been published in many occasions by major editorials and architecture websites and also have been awarded by the "americas. Hernández silva arquitectos tiene 11 proyectos publicados en nuestro sitio, enfocado en: Since 1988, hernandez silva is a professional architecture, engineering and construction collaborative studio, under the direction of architect jorge luis hernández silva, based in guadalajara, méxico. Hernandez silva, desde 1988 es una firma de profesionales donde participan: 26/10/2016 · casa roja / hernández silva arquitectos. Jorge luis hernández silva, ing.

Tu obra em buenas manos. Jorge luis hernández silva, ing. Hernández silva arquitectos tiene 11 proyectos publicados en nuestro sitio, enfocado en: Since 1988, hernandez silva is a professional architecture, engineering and construction collaborative studio, under the direction of architect jorge luis hernández silva, based in guadalajara, méxico. Ingenieros, arquitectos, diseñadores y un gran equipo de construcción, dirigida por el arquitecto jorge luis hernandez silva. Descripción enviada por el equipo del proyecto.

Descripción enviada por el equipo del proyecto. Since 1988, hernandez silva is a professional architecture, engineering and construction collaborative studio, under the direction of architect jorge luis hernández silva, based in guadalajara, méxico. Ingenieros, arquitectos, diseñadores y un gran equipo de construcción, dirigida por el arquitecto jorge luis hernandez silva. Con casi 30 años de experiencia en servicios relacionados con la edificación, puedo colaborar. Hernández silva arquitectos tiene 11 proyectos publicados en nuestro sitio, enfocado en: Casa roja se encuentra ubicada en un fraccionamiento al poniente de zapopan. 26/10/2016 · casa roja / hernández silva arquitectos. Jorge luis hernández silva, ing. En todo el proceso constructivo, desde el diseño y ejecución de obras hasta la tramitación de... 26/10/2016 · casa roja / hernández silva arquitectos.

Hernández silva arquitectos tiene 11 proyectos publicados en nuestro sitio, enfocado en:. Basado en proyectos construidos en nuestro sitio. Con casi 30 años de experiencia en servicios relacionados con la edificación, puedo colaborar. Ingenieros, arquitectos, diseñadores y un gran equipo de construcción, dirigida por el arquitecto jorge luis hernandez silva. 26/10/2016 · casa roja / hernández silva arquitectos. Since 1988, hernandez silva is a professional architecture, engineering and construction collaborative studio, under the direction of architect jorge luis hernández silva, based in guadalajara, méxico. Since 1988, hernandez silva is a professional architecture, engineering and construction collaborative studio, under the direction of architect jorge luis hernández silva, based in guadalajara, méxico. Its projects have been published in many occasions by major editorials and architecture websites and also have been awarded by the "americas... Jorge luis hernández silva, ing.

Its projects have been published in many occasions by major editorials and architecture websites and also have been awarded by the "americas.. Descripción enviada por el equipo del proyecto. Hernandez silva, desde 1988 es una firma de profesionales donde participan: Its projects have been published in many occasions by major editorials and architecture websites and also have been awarded by the "americas. Since 1988, hernandez silva is a professional architecture, engineering and construction collaborative studio, under the direction of architect jorge luis hernández silva, based in guadalajara, méxico. Basado en proyectos construidos en nuestro sitio. Casa roja se encuentra ubicada en un fraccionamiento al poniente de zapopan.
En todo el proceso constructivo, desde el diseño y ejecución de obras hasta la tramitación de. Tu obra em buenas manos. Basado en proyectos construidos en nuestro sitio. Hernández silva arquitectos tiene 11 proyectos publicados en nuestro sitio, enfocado en: Ingenieros, arquitectos, diseñadores y un gran equipo de construcción, dirigida por el arquitecto jorge luis hernandez silva. Jorge luis hernández silva, ing. 26/10/2016 · casa roja / hernández silva arquitectos. Casa roja se encuentra ubicada en un fraccionamiento al poniente de zapopan. En todo el proceso constructivo, desde el diseño y ejecución de obras hasta la tramitación de.. Casa roja se encuentra ubicada en un fraccionamiento al poniente de zapopan.

En todo el proceso constructivo, desde el diseño y ejecución de obras hasta la tramitación de. Descripción enviada por el equipo del proyecto. Hernández silva arquitectos tiene 11 proyectos publicados en nuestro sitio, enfocado en: Jorge luis hernández silva, ing. Casa roja se encuentra ubicada en un fraccionamiento al poniente de zapopan. Since 1988, hernandez silva is a professional architecture, engineering and construction collaborative studio, under the direction of architect jorge luis hernández silva, based in guadalajara, méxico.
En todo el proceso constructivo, desde el diseño y ejecución de obras hasta la tramitación de.. En todo el proceso constructivo, desde el diseño y ejecución de obras hasta la tramitación de. Jorge luis hernández silva, ing. Ingenieros, arquitectos, diseñadores y un gran equipo de construcción, dirigida por el arquitecto jorge luis hernandez silva. Since 1988, hernandez silva is a professional architecture, engineering and construction collaborative studio, under the direction of architect jorge luis hernández silva, based in guadalajara, méxico.. Jorge luis hernández silva, ing.

Since 1988, hernandez silva is a professional architecture, engineering and construction collaborative studio, under the direction of architect jorge luis hernández silva, based in guadalajara, méxico... Tu obra em buenas manos. Con casi 30 años de experiencia en servicios relacionados con la edificación, puedo colaborar. Ingenieros, arquitectos, diseñadores y un gran equipo de construcción, dirigida por el arquitecto jorge luis hernandez silva. Casa roja se encuentra ubicada en un fraccionamiento al poniente de zapopan. Since 1988, hernandez silva is a professional architecture, engineering and construction collaborative studio, under the direction of architect jorge luis hernández silva, based in guadalajara, méxico. 26/10/2016 · casa roja / hernández silva arquitectos.. Jorge luis hernández silva, ing.

Basado en proyectos construidos en nuestro sitio... Casa roja se encuentra ubicada en un fraccionamiento al poniente de zapopan. Hernandez silva, desde 1988 es una firma de profesionales donde participan: Since 1988, hernandez silva is a professional architecture, engineering and construction collaborative studio, under the direction of architect jorge luis hernández silva, based in guadalajara, méxico. Since 1988, hernandez silva is a professional architecture, engineering and construction collaborative studio, under the direction of architect jorge luis hernández silva, based in guadalajara, méxico. Hernández silva arquitectos tiene 11 proyectos publicados en nuestro sitio, enfocado en: Con casi 30 años de experiencia en servicios relacionados con la edificación, puedo colaborar. En todo el proceso constructivo, desde el diseño y ejecución de obras hasta la tramitación de. Tu obra em buenas manos. Ingenieros, arquitectos, diseñadores y un gran equipo de construcción, dirigida por el arquitecto jorge luis hernandez silva.

Hernández silva arquitectos tiene 11 proyectos publicados en nuestro sitio, enfocado en: 26/10/2016 · casa roja / hernández silva arquitectos. Jorge luis hernández silva, ing. Since 1988, hernandez silva is a professional architecture, engineering and construction collaborative studio, under the direction of architect jorge luis hernández silva, based in guadalajara, méxico. Since 1988, hernandez silva is a professional architecture, engineering and construction collaborative studio, under the direction of architect jorge luis hernández silva, based in guadalajara, méxico. Hernández silva arquitectos tiene 11 proyectos publicados en nuestro sitio, enfocado en: Tu obra em buenas manos. Its projects have been published in many occasions by major editorials and architecture websites and also have been awarded by the "americas. Basado en proyectos construidos en nuestro sitio. En todo el proceso constructivo, desde el diseño y ejecución de obras hasta la tramitación de. Con casi 30 años de experiencia en servicios relacionados con la edificación, puedo colaborar. Descripción enviada por el equipo del proyecto.

26/10/2016 · casa roja / hernández silva arquitectos.. Hernandez silva, desde 1988 es una firma de profesionales donde participan: Tu obra em buenas manos. Its projects have been published in many occasions by major editorials and architecture websites and also have been awarded by the "americas. Jorge luis hernández silva, ing. Ingenieros, arquitectos, diseñadores y un gran equipo de construcción, dirigida por el arquitecto jorge luis hernandez silva. Basado en proyectos construidos en nuestro sitio. 26/10/2016 · casa roja / hernández silva arquitectos. Since 1988, hernandez silva is a professional architecture, engineering and construction collaborative studio, under the direction of architect jorge luis hernández silva, based in guadalajara, méxico.. Basado en proyectos construidos en nuestro sitio.

Hernández silva arquitectos tiene 11 proyectos publicados en nuestro sitio, enfocado en:.. Since 1988, hernandez silva is a professional architecture, engineering and construction collaborative studio, under the direction of architect jorge luis hernández silva, based in guadalajara, méxico. Its projects have been published in many occasions by major editorials and architecture websites and also have been awarded by the "americas. 26/10/2016 · casa roja / hernández silva arquitectos.. Its projects have been published in many occasions by major editorials and architecture websites and also have been awarded by the "americas.
Casa roja se encuentra ubicada en un fraccionamiento al poniente de zapopan.. Basado en proyectos construidos en nuestro sitio.. Basado en proyectos construidos en nuestro sitio.

Jorge luis hernández silva, ing.. Casa roja se encuentra ubicada en un fraccionamiento al poniente de zapopan. Since 1988, hernandez silva is a professional architecture, engineering and construction collaborative studio, under the direction of architect jorge luis hernández silva, based in guadalajara, méxico. Hernandez silva, desde 1988 es una firma de profesionales donde participan: 26/10/2016 · casa roja / hernández silva arquitectos. Ingenieros, arquitectos, diseñadores y un gran equipo de construcción, dirigida por el arquitecto jorge luis hernandez silva. Con casi 30 años de experiencia en servicios relacionados con la edificación, puedo colaborar. Tu obra em buenas manos. Its projects have been published in many occasions by major editorials and architecture websites and also have been awarded by the "americas. Since 1988, hernandez silva is a professional architecture, engineering and construction collaborative studio, under the direction of architect jorge luis hernández silva, based in guadalajara, méxico. En todo el proceso constructivo, desde el diseño y ejecución de obras hasta la tramitación de. Basado en proyectos construidos en nuestro sitio.

Jorge luis hernández silva, ing. Ingenieros, arquitectos, diseñadores y un gran equipo de construcción, dirigida por el arquitecto jorge luis hernandez silva. Since 1988, hernandez silva is a professional architecture, engineering and construction collaborative studio, under the direction of architect jorge luis hernández silva, based in guadalajara, méxico. Descripción enviada por el equipo del proyecto. Basado en proyectos construidos en nuestro sitio.
Hernández silva arquitectos tiene 11 proyectos publicados en nuestro sitio, enfocado en: Con casi 30 años de experiencia en servicios relacionados con la edificación, puedo colaborar. Descripción enviada por el equipo del proyecto. Casa roja se encuentra ubicada en un fraccionamiento al poniente de zapopan. Hernandez silva, desde 1988 es una firma de profesionales donde participan:.. Basado en proyectos construidos en nuestro sitio.
Casa roja se encuentra ubicada en un fraccionamiento al poniente de zapopan. Jorge luis hernández silva, ing. Descripción enviada por el equipo del proyecto. Con casi 30 años de experiencia en servicios relacionados con la edificación, puedo colaborar. Since 1988, hernandez silva is a professional architecture, engineering and construction collaborative studio, under the direction of architect jorge luis hernández silva, based in guadalajara, méxico. Its projects have been published in many occasions by major editorials and architecture websites and also have been awarded by the "americas. Ingenieros, arquitectos, diseñadores y un gran equipo de construcción, dirigida por el arquitecto jorge luis hernandez silva. Casa roja se encuentra ubicada en un fraccionamiento al poniente de zapopan. En todo el proceso constructivo, desde el diseño y ejecución de obras hasta la tramitación de.. Since 1988, hernandez silva is a professional architecture, engineering and construction collaborative studio, under the direction of architect jorge luis hernández silva, based in guadalajara, méxico.
Descripción enviada por el equipo del proyecto. Con casi 30 años de experiencia en servicios relacionados con la edificación, puedo colaborar. Tu obra em buenas manos. En todo el proceso constructivo, desde el diseño y ejecución de obras hasta la tramitación de. 26/10/2016 · casa roja / hernández silva arquitectos. Jorge luis hernández silva, ing. Ingenieros, arquitectos, diseñadores y un gran equipo de construcción, dirigida por el arquitecto jorge luis hernandez silva. Tu obra em buenas manos.

26/10/2016 · casa roja / hernández silva arquitectos... Con casi 30 años de experiencia en servicios relacionados con la edificación, puedo colaborar. Basado en proyectos construidos en nuestro sitio. Since 1988, hernandez silva is a professional architecture, engineering and construction collaborative studio, under the direction of architect jorge luis hernández silva, based in guadalajara, méxico. Ingenieros, arquitectos, diseñadores y un gran equipo de construcción, dirigida por el arquitecto jorge luis hernandez silva.. Basado en proyectos construidos en nuestro sitio.

Basado en proyectos construidos en nuestro sitio.. Hernandez silva, desde 1988 es una firma de profesionales donde participan: Since 1988, hernandez silva is a professional architecture, engineering and construction collaborative studio, under the direction of architect jorge luis hernández silva, based in guadalajara, méxico... Con casi 30 años de experiencia en servicios relacionados con la edificación, puedo colaborar.

Con casi 30 años de experiencia en servicios relacionados con la edificación, puedo colaborar.. Ingenieros, arquitectos, diseñadores y un gran equipo de construcción, dirigida por el arquitecto jorge luis hernandez silva... Hernandez silva, desde 1988 es una firma de profesionales donde participan:

Descripción enviada por el equipo del proyecto. Casa roja se encuentra ubicada en un fraccionamiento al poniente de zapopan.. Ingenieros, arquitectos, diseñadores y un gran equipo de construcción, dirigida por el arquitecto jorge luis hernandez silva.
Descripción enviada por el equipo del proyecto.. Basado en proyectos construidos en nuestro sitio. Tu obra em buenas manos. Hernandez silva, desde 1988 es una firma de profesionales donde participan: Jorge luis hernández silva, ing. 26/10/2016 · casa roja / hernández silva arquitectos. Since 1988, hernandez silva is a professional architecture, engineering and construction collaborative studio, under the direction of architect jorge luis hernández silva, based in guadalajara, méxico. Descripción enviada por el equipo del proyecto. Since 1988, hernandez silva is a professional architecture, engineering and construction collaborative studio, under the direction of architect jorge luis hernández silva, based in guadalajara, méxico. Casa roja se encuentra ubicada en un fraccionamiento al poniente de zapopan. Jorge luis hernández silva, ing.

Since 1988, hernandez silva is a professional architecture, engineering and construction collaborative studio, under the direction of architect jorge luis hernández silva, based in guadalajara, méxico. Since 1988, hernandez silva is a professional architecture, engineering and construction collaborative studio, under the direction of architect jorge luis hernández silva, based in guadalajara, méxico. Con casi 30 años de experiencia en servicios relacionados con la edificación, puedo colaborar. Basado en proyectos construidos en nuestro sitio. Descripción enviada por el equipo del proyecto.

Con casi 30 años de experiencia en servicios relacionados con la edificación, puedo colaborar... Tu obra em buenas manos. Since 1988, hernandez silva is a professional architecture, engineering and construction collaborative studio, under the direction of architect jorge luis hernández silva, based in guadalajara, méxico. Since 1988, hernandez silva is a professional architecture, engineering and construction collaborative studio, under the direction of architect jorge luis hernández silva, based in guadalajara, méxico. Jorge luis hernández silva, ing.
Since 1988, hernandez silva is a professional architecture, engineering and construction collaborative studio, under the direction of architect jorge luis hernández silva, based in guadalajara, méxico.. Its projects have been published in many occasions by major editorials and architecture websites and also have been awarded by the "americas. Since 1988, hernandez silva is a professional architecture, engineering and construction collaborative studio, under the direction of architect jorge luis hernández silva, based in guadalajara, méxico. Since 1988, hernandez silva is a professional architecture, engineering and construction collaborative studio, under the direction of architect jorge luis hernández silva, based in guadalajara, méxico. Ingenieros, arquitectos, diseñadores y un gran equipo de construcción, dirigida por el arquitecto jorge luis hernandez silva. En todo el proceso constructivo, desde el diseño y ejecución de obras hasta la tramitación de. Con casi 30 años de experiencia en servicios relacionados con la edificación, puedo colaborar. Descripción enviada por el equipo del proyecto. Tu obra em buenas manos. Jorge luis hernández silva, ing.. Tu obra em buenas manos.

En todo el proceso constructivo, desde el diseño y ejecución de obras hasta la tramitación de. Casa roja se encuentra ubicada en un fraccionamiento al poniente de zapopan.

Jorge luis hernández silva, ing. Hernández silva arquitectos tiene 11 proyectos publicados en nuestro sitio, enfocado en: Since 1988, hernandez silva is a professional architecture, engineering and construction collaborative studio, under the direction of architect jorge luis hernández silva, based in guadalajara, méxico. Tu obra em buenas manos.
Tu obra em buenas manos. En todo el proceso constructivo, desde el diseño y ejecución de obras hasta la tramitación de. Jorge luis hernández silva, ing. 26/10/2016 · casa roja / hernández silva arquitectos. Hernández silva arquitectos tiene 11 proyectos publicados en nuestro sitio, enfocado en: Its projects have been published in many occasions by major editorials and architecture websites and also have been awarded by the "americas. Hernandez silva, desde 1988 es una firma de profesionales donde participan: Since 1988, hernandez silva is a professional architecture, engineering and construction collaborative studio, under the direction of architect jorge luis hernández silva, based in guadalajara, méxico. Basado en proyectos construidos en nuestro sitio. Con casi 30 años de experiencia en servicios relacionados con la edificación, puedo colaborar.

Con casi 30 años de experiencia en servicios relacionados con la edificación, puedo colaborar. Hernandez silva, desde 1988 es una firma de profesionales donde participan: Jorge luis hernández silva, ing. Con casi 30 años de experiencia en servicios relacionados con la edificación, puedo colaborar. Ingenieros, arquitectos, diseñadores y un gran equipo de construcción, dirigida por el arquitecto jorge luis hernandez silva. Since 1988, hernandez silva is a professional architecture, engineering and construction collaborative studio, under the direction of architect jorge luis hernández silva, based in guadalajara, méxico.. Its projects have been published in many occasions by major editorials and architecture websites and also have been awarded by the "americas.

Casa roja se encuentra ubicada en un fraccionamiento al poniente de zapopan... Ingenieros, arquitectos, diseñadores y un gran equipo de construcción, dirigida por el arquitecto jorge luis hernandez silva. Since 1988, hernandez silva is a professional architecture, engineering and construction collaborative studio, under the direction of architect jorge luis hernández silva, based in guadalajara, méxico. Con casi 30 años de experiencia en servicios relacionados con la edificación, puedo colaborar. Tu obra em buenas manos. 26/10/2016 · casa roja / hernández silva arquitectos. 26/10/2016 · casa roja / hernández silva arquitectos.

En todo el proceso constructivo, desde el diseño y ejecución de obras hasta la tramitación de. Its projects have been published in many occasions by major editorials and architecture websites and also have been awarded by the "americas.
Descripción enviada por el equipo del proyecto.. 26/10/2016 · casa roja / hernández silva arquitectos. Basado en proyectos construidos en nuestro sitio. Hernández silva arquitectos tiene 11 proyectos publicados en nuestro sitio, enfocado en: Con casi 30 años de experiencia en servicios relacionados con la edificación, puedo colaborar. Since 1988, hernandez silva is a professional architecture, engineering and construction collaborative studio, under the direction of architect jorge luis hernández silva, based in guadalajara, méxico. Hernandez silva, desde 1988 es una firma de profesionales donde participan: Descripción enviada por el equipo del proyecto. En todo el proceso constructivo, desde el diseño y ejecución de obras hasta la tramitación de. Casa roja se encuentra ubicada en un fraccionamiento al poniente de zapopan.. Casa roja se encuentra ubicada en un fraccionamiento al poniente de zapopan.

Hernandez silva, desde 1988 es una firma de profesionales donde participan: Jorge luis hernández silva, ing.

Hernández silva arquitectos tiene 11 proyectos publicados en nuestro sitio, enfocado en:.. Jorge luis hernández silva, ing. Ingenieros, arquitectos, diseñadores y un gran equipo de construcción, dirigida por el arquitecto jorge luis hernandez silva. Tu obra em buenas manos... Descripción enviada por el equipo del proyecto.

Con casi 30 años de experiencia en servicios relacionados con la edificación, puedo colaborar. Con casi 30 años de experiencia en servicios relacionados con la edificación, puedo colaborar. Descripción enviada por el equipo del proyecto. En todo el proceso constructivo, desde el diseño y ejecución de obras hasta la tramitación de. Since 1988, hernandez silva is a professional architecture, engineering and construction collaborative studio, under the direction of architect jorge luis hernández silva, based in guadalajara, méxico. Tu obra em buenas manos. 26/10/2016 · casa roja / hernández silva arquitectos. Basado en proyectos construidos en nuestro sitio. Since 1988, hernandez silva is a professional architecture, engineering and construction collaborative studio, under the direction of architect jorge luis hernández silva, based in guadalajara, méxico.. Since 1988, hernandez silva is a professional architecture, engineering and construction collaborative studio, under the direction of architect jorge luis hernández silva, based in guadalajara, méxico.

En todo el proceso constructivo, desde el diseño y ejecución de obras hasta la tramitación de. Since 1988, hernandez silva is a professional architecture, engineering and construction collaborative studio, under the direction of architect jorge luis hernández silva, based in guadalajara, méxico. Con casi 30 años de experiencia en servicios relacionados con la edificación, puedo colaborar... Descripción enviada por el equipo del proyecto.

Since 1988, hernandez silva is a professional architecture, engineering and construction collaborative studio, under the direction of architect jorge luis hernández silva, based in guadalajara, méxico... Basado en proyectos construidos en nuestro sitio. Ingenieros, arquitectos, diseñadores y un gran equipo de construcción, dirigida por el arquitecto jorge luis hernandez silva. Casa roja se encuentra ubicada en un fraccionamiento al poniente de zapopan. Its projects have been published in many occasions by major editorials and architecture websites and also have been awarded by the "americas. Hernandez silva, desde 1988 es una firma de profesionales donde participan:. Basado en proyectos construidos en nuestro sitio.
En todo el proceso constructivo, desde el diseño y ejecución de obras hasta la tramitación de. Casa roja se encuentra ubicada en un fraccionamiento al poniente de zapopan... Tu obra em buenas manos.

26/10/2016 · casa roja / hernández silva arquitectos. En todo el proceso constructivo, desde el diseño y ejecución de obras hasta la tramitación de. Its projects have been published in many occasions by major editorials and architecture websites and also have been awarded by the "americas.. Hernandez silva, desde 1988 es una firma de profesionales donde participan:

Casa roja se encuentra ubicada en un fraccionamiento al poniente de zapopan.. Basado en proyectos construidos en nuestro sitio. Hernandez silva, desde 1988 es una firma de profesionales donde participan: Its projects have been published in many occasions by major editorials and architecture websites and also have been awarded by the "americas. Casa roja se encuentra ubicada en un fraccionamiento al poniente de zapopan. En todo el proceso constructivo, desde el diseño y ejecución de obras hasta la tramitación de. Since 1988, hernandez silva is a professional architecture, engineering and construction collaborative studio, under the direction of architect jorge luis hernández silva, based in guadalajara, méxico. Jorge luis hernández silva, ing. Descripción enviada por el equipo del proyecto. Ingenieros, arquitectos, diseñadores y un gran equipo de construcción, dirigida por el arquitecto jorge luis hernandez silva. Its projects have been published in many occasions by major editorials and architecture websites and also have been awarded by the "americas.
Hernandez silva, desde 1988 es una firma de profesionales donde participan: . Its projects have been published in many occasions by major editorials and architecture websites and also have been awarded by the "americas.

Tu obra em buenas manos. En todo el proceso constructivo, desde el diseño y ejecución de obras hasta la tramitación de. Tu obra em buenas manos. Since 1988, hernandez silva is a professional architecture, engineering and construction collaborative studio, under the direction of architect jorge luis hernández silva, based in guadalajara, méxico. Ingenieros, arquitectos, diseñadores y un gran equipo de construcción, dirigida por el arquitecto jorge luis hernandez silva. Hernández silva arquitectos tiene 11 proyectos publicados en nuestro sitio, enfocado en: Its projects have been published in many occasions by major editorials and architecture websites and also have been awarded by the "americas. Since 1988, hernandez silva is a professional architecture, engineering and construction collaborative studio, under the direction of architect jorge luis hernández silva, based in guadalajara, méxico. Basado en proyectos construidos en nuestro sitio. Jorge luis hernández silva, ing. Con casi 30 años de experiencia en servicios relacionados con la edificación, puedo colaborar.. Casa roja se encuentra ubicada en un fraccionamiento al poniente de zapopan.

Descripción enviada por el equipo del proyecto. Casa roja se encuentra ubicada en un fraccionamiento al poniente de zapopan. En todo el proceso constructivo, desde el diseño y ejecución de obras hasta la tramitación de.. Descripción enviada por el equipo del proyecto.
Hernández silva arquitectos tiene 11 proyectos publicados en nuestro sitio, enfocado en: Jorge luis hernández silva, ing. Hernandez silva, desde 1988 es una firma de profesionales donde participan: Since 1988, hernandez silva is a professional architecture, engineering and construction collaborative studio, under the direction of architect jorge luis hernández silva, based in guadalajara, méxico. Hernández silva arquitectos tiene 11 proyectos publicados en nuestro sitio, enfocado en:
Hernández silva arquitectos tiene 11 proyectos publicados en nuestro sitio, enfocado en: Casa roja se encuentra ubicada en un fraccionamiento al poniente de zapopan. Its projects have been published in many occasions by major editorials and architecture websites and also have been awarded by the "americas. Tu obra em buenas manos. 26/10/2016 · casa roja / hernández silva arquitectos. Since 1988, hernandez silva is a professional architecture, engineering and construction collaborative studio, under the direction of architect jorge luis hernández silva, based in guadalajara, méxico. Jorge luis hernández silva, ing. Hernandez silva, desde 1988 es una firma de profesionales donde participan: Basado en proyectos construidos en nuestro sitio.. 26/10/2016 · casa roja / hernández silva arquitectos.

Basado en proyectos construidos en nuestro sitio. Hernández silva arquitectos tiene 11 proyectos publicados en nuestro sitio, enfocado en: Con casi 30 años de experiencia en servicios relacionados con la edificación, puedo colaborar. Tu obra em buenas manos. En todo el proceso constructivo, desde el diseño y ejecución de obras hasta la tramitación de... Hernandez silva, desde 1988 es una firma de profesionales donde participan:

Con casi 30 años de experiencia en servicios relacionados con la edificación, puedo colaborar. Jorge luis hernández silva, ing. Its projects have been published in many occasions by major editorials and architecture websites and also have been awarded by the "americas. Basado en proyectos construidos en nuestro sitio. Con casi 30 años de experiencia en servicios relacionados con la edificación, puedo colaborar. Since 1988, hernandez silva is a professional architecture, engineering and construction collaborative studio, under the direction of architect jorge luis hernández silva, based in guadalajara, méxico.

Since 1988, hernandez silva is a professional architecture, engineering and construction collaborative studio, under the direction of architect jorge luis hernández silva, based in guadalajara, méxico. Since 1988, hernandez silva is a professional architecture, engineering and construction collaborative studio, under the direction of architect jorge luis hernández silva, based in guadalajara, méxico. Descripción enviada por el equipo del proyecto. Hernández silva arquitectos tiene 11 proyectos publicados en nuestro sitio, enfocado en: Basado en proyectos construidos en nuestro sitio. Ingenieros, arquitectos, diseñadores y un gran equipo de construcción, dirigida por el arquitecto jorge luis hernandez silva. Tu obra em buenas manos. 26/10/2016 · casa roja / hernández silva arquitectos. Its projects have been published in many occasions by major editorials and architecture websites and also have been awarded by the "americas.

Jorge luis hernández silva, ing... Hernandez silva, desde 1988 es una firma de profesionales donde participan: Hernández silva arquitectos tiene 11 proyectos publicados en nuestro sitio, enfocado en: Since 1988, hernandez silva is a professional architecture, engineering and construction collaborative studio, under the direction of architect jorge luis hernández silva, based in guadalajara, méxico. Casa roja se encuentra ubicada en un fraccionamiento al poniente de zapopan. Jorge luis hernández silva, ing. Con casi 30 años de experiencia en servicios relacionados con la edificación, puedo colaborar. Tu obra em buenas manos.

Since 1988, hernandez silva is a professional architecture, engineering and construction collaborative studio, under the direction of architect jorge luis hernández silva, based in guadalajara, méxico. Since 1988, hernandez silva is a professional architecture, engineering and construction collaborative studio, under the direction of architect jorge luis hernández silva, based in guadalajara, méxico. 26/10/2016 · casa roja / hernández silva arquitectos.. Descripción enviada por el equipo del proyecto.

Since 1988, hernandez silva is a professional architecture, engineering and construction collaborative studio, under the direction of architect jorge luis hernández silva, based in guadalajara, méxico.. 26/10/2016 · casa roja / hernández silva arquitectos. Descripción enviada por el equipo del proyecto.

Since 1988, hernandez silva is a professional architecture, engineering and construction collaborative studio, under the direction of architect jorge luis hernández silva, based in guadalajara, méxico. Since 1988, hernandez silva is a professional architecture, engineering and construction collaborative studio, under the direction of architect jorge luis hernández silva, based in guadalajara, méxico. Con casi 30 años de experiencia en servicios relacionados con la edificación, puedo colaborar. 26/10/2016 · casa roja / hernández silva arquitectos. Hernández silva arquitectos tiene 11 proyectos publicados en nuestro sitio, enfocado en: Since 1988, hernandez silva is a professional architecture, engineering and construction collaborative studio, under the direction of architect jorge luis hernández silva, based in guadalajara, méxico. En todo el proceso constructivo, desde el diseño y ejecución de obras hasta la tramitación de. Casa roja se encuentra ubicada en un fraccionamiento al poniente de zapopan. Hernandez silva, desde 1988 es una firma de profesionales donde participan: Jorge luis hernández silva, ing.. Casa roja se encuentra ubicada en un fraccionamiento al poniente de zapopan.

Since 1988, hernandez silva is a professional architecture, engineering and construction collaborative studio, under the direction of architect jorge luis hernández silva, based in guadalajara, méxico. Tu obra em buenas manos. Ingenieros, arquitectos, diseñadores y un gran equipo de construcción, dirigida por el arquitecto jorge luis hernandez silva.

26/10/2016 · casa roja / hernández silva arquitectos. Its projects have been published in many occasions by major editorials and architecture websites and also have been awarded by the "americas. Tu obra em buenas manos. Since 1988, hernandez silva is a professional architecture, engineering and construction collaborative studio, under the direction of architect jorge luis hernández silva, based in guadalajara, méxico. Ingenieros, arquitectos, diseñadores y un gran equipo de construcción, dirigida por el arquitecto jorge luis hernandez silva.. Hernandez silva, desde 1988 es una firma de profesionales donde participan:

Hernandez silva, desde 1988 es una firma de profesionales donde participan: Basado en proyectos construidos en nuestro sitio.
Basado en proyectos construidos en nuestro sitio. Con casi 30 años de experiencia en servicios relacionados con la edificación, puedo colaborar.

Con casi 30 años de experiencia en servicios relacionados con la edificación, puedo colaborar. Since 1988, hernandez silva is a professional architecture, engineering and construction collaborative studio, under the direction of architect jorge luis hernández silva, based in guadalajara, méxico. Jorge luis hernández silva, ing. En todo el proceso constructivo, desde el diseño y ejecución de obras hasta la tramitación de. Casa roja se encuentra ubicada en un fraccionamiento al poniente de zapopan. Basado en proyectos construidos en nuestro sitio. Con casi 30 años de experiencia en servicios relacionados con la edificación, puedo colaborar. 26/10/2016 · casa roja / hernández silva arquitectos.

Its projects have been published in many occasions by major editorials and architecture websites and also have been awarded by the "americas. Basado en proyectos construidos en nuestro sitio. Ingenieros, arquitectos, diseñadores y un gran equipo de construcción, dirigida por el arquitecto jorge luis hernandez silva. Casa roja se encuentra ubicada en un fraccionamiento al poniente de zapopan. Its projects have been published in many occasions by major editorials and architecture websites and also have been awarded by the "americas. Con casi 30 años de experiencia en servicios relacionados con la edificación, puedo colaborar. Descripción enviada por el equipo del proyecto. Since 1988, hernandez silva is a professional architecture, engineering and construction collaborative studio, under the direction of architect jorge luis hernández silva, based in guadalajara, méxico. Since 1988, hernandez silva is a professional architecture, engineering and construction collaborative studio, under the direction of architect jorge luis hernández silva, based in guadalajara, méxico.. Basado en proyectos construidos en nuestro sitio.

26/10/2016 · casa roja / hernández silva arquitectos... Its projects have been published in many occasions by major editorials and architecture websites and also have been awarded by the "americas. Casa roja se encuentra ubicada en un fraccionamiento al poniente de zapopan. Hernandez silva, desde 1988 es una firma de profesionales donde participan: En todo el proceso constructivo, desde el diseño y ejecución de obras hasta la tramitación de.

Descripción enviada por el equipo del proyecto.. Jorge luis hernández silva, ing. Its projects have been published in many occasions by major editorials and architecture websites and also have been awarded by the "americas.. Con casi 30 años de experiencia en servicios relacionados con la edificación, puedo colaborar.
Descripción enviada por el equipo del proyecto. Hernández silva arquitectos tiene 11 proyectos publicados en nuestro sitio, enfocado en: Hernandez silva, desde 1988 es una firma de profesionales donde participan:.. Casa roja se encuentra ubicada en un fraccionamiento al poniente de zapopan.

Tu obra em buenas manos. Its projects have been published in many occasions by major editorials and architecture websites and also have been awarded by the "americas. Tu obra em buenas manos. Casa roja se encuentra ubicada en un fraccionamiento al poniente de zapopan. Basado en proyectos construidos en nuestro sitio. Ingenieros, arquitectos, diseñadores y un gran equipo de construcción, dirigida por el arquitecto jorge luis hernandez silva. 26/10/2016 · casa roja / hernández silva arquitectos.

Hernández silva arquitectos tiene 11 proyectos publicados en nuestro sitio, enfocado en: En todo el proceso constructivo, desde el diseño y ejecución de obras hasta la tramitación de. Ingenieros, arquitectos, diseñadores y un gran equipo de construcción, dirigida por el arquitecto jorge luis hernandez silva. Since 1988, hernandez silva is a professional architecture, engineering and construction collaborative studio, under the direction of architect jorge luis hernández silva, based in guadalajara, méxico. Jorge luis hernández silva, ing. 26/10/2016 · casa roja / hernández silva arquitectos.

En todo el proceso constructivo, desde el diseño y ejecución de obras hasta la tramitación de... 26/10/2016 · casa roja / hernández silva arquitectos. Tu obra em buenas manos. Basado en proyectos construidos en nuestro sitio. Con casi 30 años de experiencia en servicios relacionados con la edificación, puedo colaborar. Hernández silva arquitectos tiene 11 proyectos publicados en nuestro sitio, enfocado en: Its projects have been published in many occasions by major editorials and architecture websites and also have been awarded by the "americas. Descripción enviada por el equipo del proyecto.. Jorge luis hernández silva, ing.

Descripción enviada por el equipo del proyecto. Jorge luis hernández silva, ing. Casa roja se encuentra ubicada en un fraccionamiento al poniente de zapopan. Since 1988, hernandez silva is a professional architecture, engineering and construction collaborative studio, under the direction of architect jorge luis hernández silva, based in guadalajara, méxico.. Jorge luis hernández silva, ing.

Hernández silva arquitectos tiene 11 proyectos publicados en nuestro sitio, enfocado en:.. 26/10/2016 · casa roja / hernández silva arquitectos. Con casi 30 años de experiencia en servicios relacionados con la edificación, puedo colaborar. Since 1988, hernandez silva is a professional architecture, engineering and construction collaborative studio, under the direction of architect jorge luis hernández silva, based in guadalajara, méxico. Since 1988, hernandez silva is a professional architecture, engineering and construction collaborative studio, under the direction of architect jorge luis hernández silva, based in guadalajara, méxico... Con casi 30 años de experiencia en servicios relacionados con la edificación, puedo colaborar.

Since 1988, hernandez silva is a professional architecture, engineering and construction collaborative studio, under the direction of architect jorge luis hernández silva, based in guadalajara, méxico. Basado en proyectos construidos en nuestro sitio. Jorge luis hernández silva, ing. 26/10/2016 · casa roja / hernández silva arquitectos. Its projects have been published in many occasions by major editorials and architecture websites and also have been awarded by the "americas. Casa roja se encuentra ubicada en un fraccionamiento al poniente de zapopan. Descripción enviada por el equipo del proyecto. Con casi 30 años de experiencia en servicios relacionados con la edificación, puedo colaborar. Since 1988, hernandez silva is a professional architecture, engineering and construction collaborative studio, under the direction of architect jorge luis hernández silva, based in guadalajara, méxico. En todo el proceso constructivo, desde el diseño y ejecución de obras hasta la tramitación de... 26/10/2016 · casa roja / hernández silva arquitectos.
Con casi 30 años de experiencia en servicios relacionados con la edificación, puedo colaborar. Since 1988, hernandez silva is a professional architecture, engineering and construction collaborative studio, under the direction of architect jorge luis hernández silva, based in guadalajara, méxico.. En todo el proceso constructivo, desde el diseño y ejecución de obras hasta la tramitación de.

Jorge luis hernández silva, ing.. Since 1988, hernandez silva is a professional architecture, engineering and construction collaborative studio, under the direction of architect jorge luis hernández silva, based in guadalajara, méxico. Con casi 30 años de experiencia en servicios relacionados con la edificación, puedo colaborar. Ingenieros, arquitectos, diseñadores y un gran equipo de construcción, dirigida por el arquitecto jorge luis hernandez silva. Basado en proyectos construidos en nuestro sitio. Its projects have been published in many occasions by major editorials and architecture websites and also have been awarded by the "americas. Casa roja se encuentra ubicada en un fraccionamiento al poniente de zapopan. Hernandez silva, desde 1988 es una firma de profesionales donde participan:

26/10/2016 · casa roja / hernández silva arquitectos... Jorge luis hernández silva, ing. En todo el proceso constructivo, desde el diseño y ejecución de obras hasta la tramitación de. Since 1988, hernandez silva is a professional architecture, engineering and construction collaborative studio, under the direction of architect jorge luis hernández silva, based in guadalajara, méxico. Basado en proyectos construidos en nuestro sitio. Descripción enviada por el equipo del proyecto. Con casi 30 años de experiencia en servicios relacionados con la edificación, puedo colaborar. Tu obra em buenas manos. Since 1988, hernandez silva is a professional architecture, engineering and construction collaborative studio, under the direction of architect jorge luis hernández silva, based in guadalajara, méxico. 26/10/2016 · casa roja / hernández silva arquitectos. Casa roja se encuentra ubicada en un fraccionamiento al poniente de zapopan. Its projects have been published in many occasions by major editorials and architecture websites and also have been awarded by the "americas.

Descripción enviada por el equipo del proyecto. 26/10/2016 · casa roja / hernández silva arquitectos. Since 1988, hernandez silva is a professional architecture, engineering and construction collaborative studio, under the direction of architect jorge luis hernández silva, based in guadalajara, méxico. Ingenieros, arquitectos, diseñadores y un gran equipo de construcción, dirigida por el arquitecto jorge luis hernandez silva. Since 1988, hernandez silva is a professional architecture, engineering and construction collaborative studio, under the direction of architect jorge luis hernández silva, based in guadalajara, méxico. Casa roja se encuentra ubicada en un fraccionamiento al poniente de zapopan. Hernandez silva, desde 1988 es una firma de profesionales donde participan: Hernández silva arquitectos tiene 11 proyectos publicados en nuestro sitio, enfocado en: Its projects have been published in many occasions by major editorials and architecture websites and also have been awarded by the "americas.. 26/10/2016 · casa roja / hernández silva arquitectos.
Descripción enviada por el equipo del proyecto.. Ingenieros, arquitectos, diseñadores y un gran equipo de construcción, dirigida por el arquitecto jorge luis hernandez silva. Since 1988, hernandez silva is a professional architecture, engineering and construction collaborative studio, under the direction of architect jorge luis hernández silva, based in guadalajara, méxico. Casa roja se encuentra ubicada en un fraccionamiento al poniente de zapopan. Jorge luis hernández silva, ing. Basado en proyectos construidos en nuestro sitio. Con casi 30 años de experiencia en servicios relacionados con la edificación, puedo colaborar. Hernández silva arquitectos tiene 11 proyectos publicados en nuestro sitio, enfocado en: 26/10/2016 · casa roja / hernández silva arquitectos.. Hernandez silva, desde 1988 es una firma de profesionales donde participan:

Hernández silva arquitectos tiene 11 proyectos publicados en nuestro sitio, enfocado en:.. Tu obra em buenas manos. Con casi 30 años de experiencia en servicios relacionados con la edificación, puedo colaborar.

Hernandez silva, desde 1988 es una firma de profesionales donde participan:. Since 1988, hernandez silva is a professional architecture, engineering and construction collaborative studio, under the direction of architect jorge luis hernández silva, based in guadalajara, méxico. Its projects have been published in many occasions by major editorials and architecture websites and also have been awarded by the "americas. Casa roja se encuentra ubicada en un fraccionamiento al poniente de zapopan. Since 1988, hernandez silva is a professional architecture, engineering and construction collaborative studio, under the direction of architect jorge luis hernández silva, based in guadalajara, méxico. Descripción enviada por el equipo del proyecto. Ingenieros, arquitectos, diseñadores y un gran equipo de construcción, dirigida por el arquitecto jorge luis hernandez silva. Hernandez silva, desde 1988 es una firma de profesionales donde participan: Con casi 30 años de experiencia en servicios relacionados con la edificación, puedo colaborar.. Basado en proyectos construidos en nuestro sitio.

Basado en proyectos construidos en nuestro sitio. Jorge luis hernández silva, ing. Basado en proyectos construidos en nuestro sitio. Hernández silva arquitectos tiene 11 proyectos publicados en nuestro sitio, enfocado en: Its projects have been published in many occasions by major editorials and architecture websites and also have been awarded by the "americas. Tu obra em buenas manos. Since 1988, hernandez silva is a professional architecture, engineering and construction collaborative studio, under the direction of architect jorge luis hernández silva, based in guadalajara, méxico. Since 1988, hernandez silva is a professional architecture, engineering and construction collaborative studio, under the direction of architect jorge luis hernández silva, based in guadalajara, méxico. Ingenieros, arquitectos, diseñadores y un gran equipo de construcción, dirigida por el arquitecto jorge luis hernandez silva. Hernandez silva, desde 1988 es una firma de profesionales donde participan: Descripción enviada por el equipo del proyecto.. Hernandez silva, desde 1988 es una firma de profesionales donde participan:

26/10/2016 · casa roja / hernández silva arquitectos. Since 1988, hernandez silva is a professional architecture, engineering and construction collaborative studio, under the direction of architect jorge luis hernández silva, based in guadalajara, méxico. 26/10/2016 · casa roja / hernández silva arquitectos. Jorge luis hernández silva, ing... 26/10/2016 · casa roja / hernández silva arquitectos.

Casa roja se encuentra ubicada en un fraccionamiento al poniente de zapopan. .. 26/10/2016 · casa roja / hernández silva arquitectos.

Since 1988, hernandez silva is a professional architecture, engineering and construction collaborative studio, under the direction of architect jorge luis hernández silva, based in guadalajara, méxico. Ingenieros, arquitectos, diseñadores y un gran equipo de construcción, dirigida por el arquitecto jorge luis hernandez silva. Descripción enviada por el equipo del proyecto. Casa roja se encuentra ubicada en un fraccionamiento al poniente de zapopan. Since 1988, hernandez silva is a professional architecture, engineering and construction collaborative studio, under the direction of architect jorge luis hernández silva, based in guadalajara, méxico. Con casi 30 años de experiencia en servicios relacionados con la edificación, puedo colaborar. Hernández silva arquitectos tiene 11 proyectos publicados en nuestro sitio, enfocado en: Hernandez silva, desde 1988 es una firma de profesionales donde participan: Basado en proyectos construidos en nuestro sitio... Con casi 30 años de experiencia en servicios relacionados con la edificación, puedo colaborar.

Ingenieros, arquitectos, diseñadores y un gran equipo de construcción, dirigida por el arquitecto jorge luis hernandez silva. Descripción enviada por el equipo del proyecto. 26/10/2016 · casa roja / hernández silva arquitectos. Con casi 30 años de experiencia en servicios relacionados con la edificación, puedo colaborar. Tu obra em buenas manos. Basado en proyectos construidos en nuestro sitio.
